厨房小不能放冰箱 , 应该放在离厨房最近的那个屋子里 。这样做饭的时候 , 便于取出冰箱里面的东西 。
最好的位置是餐厅的位置 , 如果你觉得太突出 , 可以选择嵌入式 , 先确定好冰箱尺寸再定制餐边柜 , 然后将其嵌入到柜子里 , 这样一来 , 冰箱就跟空间融为一体 , 不再显得突兀 , 也不会再占据额外的家居空间 , 这样既美观又节约空间 。
餐厅通常设计在厨房旁边 , 平时做饭和进食都很方便 , 不用担心冰箱表面的厨房油烟污染 。而且餐厅的空间足以摆放得下一台冰箱 , 不会显得拥挤 。同时 , 餐厅在一天内的使用频率不会太高 , 一般就是人们在吃饭的时候才会在这个地方 , 家人吃完饭都会离开餐桌 , 这样对于冰箱的辐射影响也不大 。
你好 , 我是独立设计师 , 如果喜欢我的方案可以点赞关注 。这里业主整体的需求并没有说明 , 不过整体可以作为刚需考虑 , 保留三房 , 整体房屋意见如下 。
户型改动分析
1.厨房空间较小 。
2.主卧门在走廊正前方 。
3.入户进入阳台动线不通畅 。
根据图纸及户型的问题进行优化 , 因原有图纸非实际测量 , 优化图存在一定尺寸误差 , 需实际测量后在CAD内复检尺寸进行方案的调整 , 优化图如下 。

文章插图
整体户型改动不大 , 主要改动为入户及厨房位置 , 主卧的进门方式 。开放式的餐厅能增大空间 , 将冰箱放置在距离餐厅较近处也方便家庭成员使用 , 厨房整体操作空间得到延伸 。客厅沙发摆放变换位置能让入户到阳台的动线更加顺畅 。主卧门改位置防止走廊尽头为大门 , 同时也能为空间制造景观装饰 , 主卧进门处也设置景观 , 门需采用弹簧合页 。
一.客厅参考

文章插图

文章插图
整体空间建议蚕蛹现代 , 不需要复杂造型 , 但所用材料一定要富有质感 , 让空间不会觉狭小 , 提升空间的格调
二.餐厅参考

文章插图

文章插图
餐厨一体能让空间更加通透 , 让空间功能叠加互相进行功能上的补充 。同时也能为原本不大的玄关增加储物及装饰的空间 。
三.卧室参考

文章插图

文章插图
卧室空间建议整体简洁 , 同时要有温馨的氛围 , 运用不同的材料让空间变得富有韵味 , 同时让人身心得到放松 。

文章插图
儿童房要满足小孩的正常居住使用 , 也要给小孩一个活动娱乐的空间 , 让小孩有自己的一片小天地去动手看书等 。
整体方案变化不大 , 但图纸尺寸与实际尺寸存在一定误差 , 需根据实际尺寸进行方案的调整 。
餐厅比较方便 随时随地都可以拿东西 吃饭了想要喝冰啤酒也方便
你好 , 我是一名有着12年从业经验的室内与家具设计师.
厨房空间是一个使用频率非常之高的空间 , 特别是2020年疫情的情况 , 国民都在呆在家里 , 那么就催生了一批平常啊不太做饭了人都上了厨房了.开玩笑话说都有成为美食播主的可能.那么根据你这个户型来分析 , 考虑厨房空间不够用的情况下 , 冰箱设置在什么位置我们是有很多种可能性 , 只要把脑洞思维打开 , 不要限制空间.
首先 , 我把原始平面布置图用CAD软件提取出来 , 先把动向空间(玄关/厨房/餐厅/客厅)做出来.大家有没有注意到原户型以下几个问题:1 , 入口空间狭窄;2 , 厨房空间太小无法满足业主使用要求 , 空间利用不高;3 , 餐厅一大片区域是浪费的(限影部分).
以下我为此空间提供几种可能性的空间改造.
综上所述 , 我们来看下方案一的改造 , 改造详细有以下几点:
1 , 把原来封闭式的厨房改成更加有空间表达能力的敞开式厨房;
2 , 增加社交吧台 , 增加互动空间 , 吧台空间也可以是收纳空间;
3 , 把冰箱和厨房高柜放在一起显得很整体 , 而且高柜的收纳功能很强大;
4 , 把传统的烟机换成集成灶;
5 , 把原来烟管包住和高柜平;
6 , 餐厅餐桌用圆形;
7 , 在餐厅空间增加鞋柜和酒柜功能 , 增加收纳空间;
方案一的改造平面:
总结方案一的改造:
优点:增加了很强的收纳空间 , 增大了空间的利用 , 空间更加通透性;原来厨房只能容纳一个人 , 现在可以容纳三人以上;完美的解决了冰箱存放位置;
缺点:有一些业主不太喜欢开放式的厨房;
方案二的改造平面:
我们来看下方案二的改造 , 改造详细有以下几点:
1 , 保留原来厨房空间 , 把冰箱移到餐厅 , 原放冰箱的位置做成强大的高柜;
2 , 餐厅餐桌设计成社交餐桌 , 增加互动空间 , 吧台设置一个洗水果的装置;
3 , 把冰箱放在餐厅的收纳柜中 , 可以做成隐藏式的冰箱 , 结合一整面墙的高柜;
4 , 原来玄关位置不变 , 做成鞋柜;
总结方案二的改造:
优点:很符合当下流行设计风格 , 可以是现代极简 , 也可以是轻奢风格;餐厅空间利用增大一倍;
缺点:不适合用圆桌的业主
参考图:
喜欢我的改造设计的话给我一个赞 , 关注我喽!有不足的地方希望大家在评论区给我留语 , 大家一起探讨交流.
我是一名室内与家具设计师 , 做有温度的设计以及贩卖世间美好!
客厅
小厨房冰箱放置
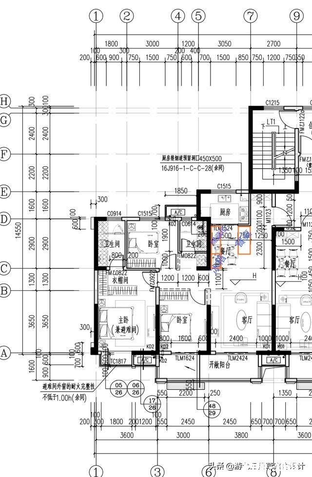
从户型图上看 , 厨房长3米 , 宽1.6米 , 4.8平方 , 空间小 。餐厅宽3.8米 。
可以将冰箱放置在餐厅:将餐厅向右侧移动 , 并贴近客厅 , 靠着原餐厅的左侧墙体摆放冰箱 , 冰箱放置在厨房门口 , 厨房门宽1.5米 , 靠墙摆放冰箱占用0.6米宽 , 餐桌可以摆放长度1.6米以内的 , 中间留有1.4米左右的空间 , 不影响厨房的通行 。将走廊调整的餐厅的中部偏西 , 这样通向客厅阳台 , 室内动线更规整一些 。
也可以不移动餐厅 , 直接在餐厅的左侧墙体摆放冰箱 , 并做储物柜 。同时将厨房做成开放式 , 或者做折叠推拉门的半开放式厨房 。这种方式餐桌左右两侧的通行空间都比较小 。
厨房小 , 冰箱不太好放是常见的装修问题 , 一般有以下几种处理方式:
嵌入式冰箱:冰箱尽量放在厨房 , 取用物品方便 , 提升烹饪效率 。嵌入式冰箱有内嵌入式 , 和外嵌入式 , 内嵌入式与橱柜整体定制 , 外观统一协调 , 齐整 。外嵌入式冰箱是做橱柜时留好尺寸 , 后期从市场购买冰箱嵌入 。
对于小户型来说 , 内嵌入式冰箱的尺寸灵活 , 可大可小 , 可以将冷藏和冷冻分区设置 , 或者只在厨房设置冷藏 。且外表装饰可以与橱柜统一起来 , 美观性比较好 。
小冰箱:小厨房空间紧张 , 也可以考虑使用小冰箱 , 只储放常用的食材 , 方便厨房做饭取用 。可以在其它房间设置大冰箱 , 或者冰柜 , 用于储放长期存储的食材 。对于喜欢新鲜食材的人来说 , 小冰箱也完全够用 。
小冰箱可以放置在厨房内 , 也可以放置在厨房的相邻空间 , 方便取用 。小冰箱的优势占用空间小 , 摆放位置比较灵活 。
厨房改造:如果厨房的墙体可以拆除 , 空间可以扩大 。通常将厨房空间进行改造 , 让厨房更大一些 , 比如向厨房的阳台 , 厨房旁边的餐厅借用一小块空间 , 或者将厨房和餐厅合并 , 或者做开放式厨房 , 延伸厨房的空间 。便于摆放冰箱 。
餐厅摆放:小厨房空间局促 , 无法做墙体改动的情况下 , 将冰箱摆放在餐厅位置 。餐厅可以做酒柜 , 餐边柜 , 与冰箱组合 , 作为厨房储物空间的补充 。
需要注意的是:
小厨房摆放冰箱 , 要考虑冰箱的散热方式 , 一般采用底部散热 , 或者顶部散热 , 或者冰箱门散热的冰箱比较好 , 两侧散热的冰箱做嵌入式通风要留3-5厘米的空间 。
冰箱的尺寸大小 。根据自家的生活需求进行选择 。一般按人口 , 每个人50-65升左右的冰箱容积 。冰箱太大占地方 , 容易造成食物长期储放 。
冰箱的位置 。在厨房内取放物品方便 , 不得靠近热源 , 水源 , 气源 。
不改动墙体的话 , 也就只能当餐厅了 , 你加1.5米的推拉厨房门 。有一半一般是不开的 , 可以做一组餐边柜和冰箱柜组合 , 餐桌往入户门方向移 , 空间还是足够的!
冰箱属于比较大件的电器 , 再放在面积较小的厨房 , 就显得很拥挤 。除了放在厨房 , 还可以选择放在餐厅或者客厅 。
放餐厅 。其实冰箱放在餐厅也是一个不错的选择 , 我们对于餐厅的使用频率不高 , 待的时间也不长 , 如果你的厨房特别小 , 就更有必要把冰箱放在餐厅 。一方面能减少冰箱对人体的辐射 , 还能够避免厨房油污污染 , 方便冰箱的日常清洁 , 厨房的操作流水线也会更长更充分 。

文章插图
放客厅 。一般来说不太建议把冰箱放客厅 , 冰箱如果放在客厅里 , 厨房客厅来回距离远 , 容易弄脏环境;而且视觉上很不搭调;最主要电冰箱是个高磁场 , 客厅人多 , 对人体产生的辐射影响大 , 尤其是家里有孕妇小孩的 。
一般而言 , 冰箱不是放厨房 , 就是放客厅 。
可以放到客厅
可以放餐厅啊 , 离厨房近取东西也方便
厨房太小冰箱不知道放哪里 , 这是很多小厨房会面临的烦恼 , 今天就给大家说说冰箱 , 不仅是从摆放的位置 , 还有生活观念的改变 。
预留冰箱尺寸
首先要说的还是冰箱的尺寸 , 有些人在装修时不知道要为冰箱留多少空间出来 。
单门冰箱一般是550x500x865mm
双开门冰箱一般有三种:
冰箱总容积301升以上 , 冷冻室容积100升以上 , 尺寸730*910*1780mm 。
冰箱总容积301升以上 , 冷冻室容积80-100升左右 , 尺寸920*820*1800mm 。
冰箱总容积600升左右 , 冷冻室容积100升左右 , 尺寸1770*920*740mm 。
三门冰箱一般是1750*580*600mm 。
不同品牌尺寸上会有差异 , 一般都是先看好冰箱的型号和尺寸 , 再来设计厨房 。
有的人家习惯一次采购一周的食材 , 有的人家更习惯每天采购新鲜蔬菜 , 特别是现在的小区 , 100㎡范围内肯定有菜市场 。所以买冰箱不能一味求大 , 比如说你家三口人 , 买个大双开 , 填都填不满 , 还更耗电 。
冰箱摆放的位置
【厨房比较小,冰箱不太好放,除了厨房放在哪比较合适呢】? 首考虑放厨房
冰箱最大的用处就是储存食材 , 和做饭息息相关 , 就不能离厨房太远 。一个好用的厨房动线是这样的:准备食材(冰箱)——洗菜(水槽)——切菜(台面)——炒菜(灶台)——洗碗(水槽) 。
冰箱放厨房的位置也有讲究 , 水槽旁不好 , 太潮;灶台旁不好 , 太热;通风差的角落不好 , 影响散热 。
? 其次放餐厅
餐厨餐厨 , 餐厅和厨房一般都挨在一起 , 厨房里放不下 , 就把冰箱挪出来 。进门就是玄关紧挨客餐厅的 , 也可以把冰箱嵌入进玄关柜中 。
? 再其次客厅
餐厨都放不下 , 再往外放一放 , 客厅也是个不错的选择 , 注意买低噪音冰箱 。但做饭的动线就被拉长了 , 建议用双冰箱 , 买个小冰箱放厨房专门储存食材 。
? 复式可以放楼梯下方
家是复式楼的 , 楼梯下面就可以开发出来了 , 嵌入进冰箱刚刚好 。
冰箱摆放的方法
? “裸奔”
冰箱直接放在预留的位置 , 独自占着一个区域 , 和周围空间没有连接 。
这种摆放方法简单省心 , 但也浪费了较多的上方空间 , 还不好看 , 我们可以在冰箱顶上装个隔板收纳东西 , 也可以放上两个收纳盒 , 或是放几株绿植 。
? 嵌入式
嵌入式冰箱有两种 , 一种是在设计橱柜时考虑到冰箱 , 留出刚刚好将的位置 , 冰箱嵌入进橱柜中 。
冰箱嵌入橱柜要注意三点:
① 尺寸配合好 , 先选好冰箱的型号 , 再预留空间;
② 冰箱最重要的就是散热 , 有的是背部散热 , 有的是两侧散热 , 还有地脚和顶板散热的 , 根据散热位置的不同 , 留出的空间也不一样 , 在购买时要咨询清楚散热的位置和应该留出的距离 。
③ 即使将橱柜和冰箱配合设计 , 橱柜的深度和冰箱的深度也是不同的 , 常常会出现冰箱凸出来的情况 。想要在视觉上达到高度统一 , 要么将冰箱后面的墙壁后移 , 要么将橱柜做深一点 , 要么选择超薄冰箱 。
嵌入式的第二种是将冰箱嵌入进柜体中 , 外观上看起来就是一组柜子 , 看不到冰箱 。
目前市场上专门做橱柜设计的冰箱较少 , 只有一些大品牌有特定型号 , 且颜色选择少 。更重要的是 , 这种冰箱要比普通的冰箱贵上许多 。
冰箱的收纳技巧
最后给大家一个冰箱使用小tips , 一张图读懂冰箱食物怎么放
尽量离厨房近的合理的地方 。
放到离厨房最近的客厅 。取东西方便 , 也不要影响睡觉 。
你好 , 我是做家装设计施工的老小赵 , 很高兴回答你这个问题 。
冰箱是家用必不可少的一个大家电 , 且体积庞大 , 比较占地方 , 没有办法压缩摆放空间 , 那冰箱是放在厨房内好呢?还是放厨房外好呢?
这个问题得具体情况具体分析 , 具体情况就是要依据户型而定 , 我的答案是厨房能放下就放厨房 , 毕竟使用方便 , 且减少公共空间的噪音问题 。厨房放不下就放餐厅 , 不能为了小厨房硬放冰箱而挤压了厨房宝贵的操作空间 。
.下面我举几个具体的案例:
案例一:90平小三房户型冰箱放餐厅和餐边柜合二为一
从平面布局看到厨房面积小(蓝色区域) , 无冰箱位置 , 冰箱只能外移
设计方案:冰箱内嵌 , 与餐边柜做一体化设计
完工照片
完工照片
案例二:100平小三房户型冰箱外移案例
平面图可以看到此户型卧室规整 , 且不小 , 但厨房偏小 , 无法放置冰箱 , 那就将冰箱外移放置餐厅 , 和餐边柜及餐厅操作台融为一体 。
设计方案 , 让冰箱 , 餐厅操作台及餐厅装饰柜融为一体 。
案例三:180大户型 , 大厨房 , 为了实现厨房功能多样性 , 冰箱外移放餐厅阳台
此户型大 , 厨房大 , 有充足的位置放置对开门大冰箱 , 最早规划方案厨房放置大冰箱 , 餐厅规划操作吧台西餐区 。
后期施工过程中业主更改方案 , 舍弃餐厅西餐区 , 且增加洗碗机占用地柜空间 , 蒸烤箱内嵌进厨房整体橱柜中占用原厨房冰箱空间 , 冰箱被迫外移放置餐厅阳台原烤箱区域 。调整后的平面布局如下
案例四:140平大厨房 , 冰洗兄弟全放在厨房 。
此户型厨房阳台打通后厨房比价宽敞 , 有专门的冰箱位置 , 但不好的一点就是客厅阳台无下水 , 北阳台纳入厨房后 , 洗衣机也的留在厨房了 。真是做到了冰洗不分家 , 兄弟不分离啊 。
案例五:180大户型 , 厨房方正 , 功能划分合理 , 大冰箱放厨房
原始结构图及重新规划后的平面布局图如下
此案例把北阳台及保姆房纳入厨房 , 且重新布局 , 规划出一个功能齐全且方正的厨房 , 还规划出一个专门的衣帽间及洗衣房 。重新规划后布局方正 , 合理好用 。
总结下:
1、小户型的 , 厨房空间有限的 , 冰箱没办法放厨房 , 那只能放外部公共区域了 , 放外部区域的时候最好能结合空间及其家具做整体化布局考虑 , 避免单一个冰箱放置的突兀性 。
2、大户型的 , 厨房有空间放置冰箱的 , 冰箱就尽量放置厨房 。
除非一些朋友厨房功能要求比较全的 , 比如洗碗机 , 蒸烤箱 , 这些家电挤用了一部分空间的 , 那可以冰箱外移 , 但能放厨房尽量放厨房 , 使用是更加方便 。
好了 , 以上就是我为你做的回答 , , 假如感觉有帮助的话 , 麻烦给个关注加转发哦!
另外我发了很多关于室内设计和装修的图文、微头条及视频 , 有需求的话可以移步去看看 , 假如感觉不错的话麻烦多多转发 , 这样就能帮助到更多正在装修或者正准备装修的朋友 , 谢谢 。
文字个人原创 , 严禁转载 , 打字不易 , 望关注
可以放在客厅 , 我们家的冰箱就是放在客厅的
放在餐厅是最合适的位置
一般厨房放不下的话 , 都会选择客厅了 , 记得预留茶座 , 可以放在靠近餐桌地方 , 比较方便
我家以前放在客厅 , 找了一个位置
建议你放在餐厅餐桌对面那面墙上 。
这可以在这里具体的需要深化设计沙发这边入门这边都需要处理才能出效果
可以放到客厅
似乎选择不多 , 1号位、2号位、3号位都可以选择 , 个人倾向1号位 。
最好选择三开门小冰箱 , 尺寸深X宽X高(mm):650X600X1800居多 。
1号位离厨房近
, 使用方便
, 餐桌望客厅方向移移 , 完全放得下 。
2号位离厨房近
, 但厨房出入不方便
, 动线有问题 , 不建议选择 。
3号位可放大的
, 装饰客厅
, 距离厨房太远 , 使用不方便 , Pass 。
穿衣戴帽、各有所好 , 你的地盘你做主 。
秒懂知识为您整理更多相关内容。
很高兴回答你的问题:
一般这种情况我都会选择把冰箱放在餐桌旁边 。
具体位置就是你发的这张图的靠近厨房推拉门的左上角靠近餐桌的位置 , 因为只有这个位置放冰箱最合适了 , 其他地方我感觉都不合适 。
为什么这么说 , 首先你得入户门在东北侧入户门进来在北上角有一个空留地但没有把冰箱放在入户门旁边的 , 在一个就是入户门进来之后就是餐厅 , 紧接着就是客厅 , 餐厅与客厅之间如果没有隔断的话是有一块空留地的 , 但是哪个位置正好对着主卧室的大门 , 我个人感觉这样不太好 。当然如果放在餐桌正对面我感觉这样的话影响美观 。所以就只有将冰箱放在厨房推拉门餐桌左上角处是最合适的 。
希望我的回答对你有所帮助 。

文章插图

文章插图

文章插图
厨房较小 , 冰箱不能放置字厨房的情况下 , 冰箱一般会放置在餐厅 。但是也需要考虑餐厅的空间尺寸是否适合 , 同时还需要调整餐桌的摆放方式 。

文章插图
△原户型
这个户型的餐厅的尺寸为3.5米*2.7米 , 空间没有问题 。但是需要调整餐厅的摆放位置 , 这样是用起来更方便 , 舒适 , 立面的整体性更强 。
调整如下:

文章插图
△调整方案
1、餐厅西墙定制储藏柜 , 柜子的深度可以从350MM到600MM , 将冰箱嵌入柜体 。使整面墙的整体性更好 。冰箱的位置可以靠向客厅或者是厨房都可以 。(个人觉得靠向客厅开启更方便 。)
在购置冰箱时 , 需要考虑冰箱的深度 , 如果是对开门冰箱 , 需要购买超薄冰箱最好 , 否则会过度占用通道位置 。(常规对开门冰箱深度在750MM左右)

文章插图
2、餐桌的窄边靠向餐厅北墙 , 留出到厨房的通道位置 。餐桌的宽度不要超过750MM 。这样刚好和北墙的墙体一样宽 。
3、餐桌左边线到冰箱储物柜的边大概尺寸为900MM , 餐桌右边线到餐厅东墙距离为1.2米 。这两个空间放置餐椅都没有问题 。但是餐桌闲置时需要收起餐椅 。使通道在使用更舒适通畅 。

文章插图
_____ ____ ____ ____ ____ ____ ____ ____ ____
以上建议仅供参考 , 如果有更好的方案 , 请发文分享!
原创不易 , 若觉有用 , 请点赞或分享支持!
- 去服装厂学缝纫工可以吗。将来能养活自己吗
- 传京东进军网约车市场,滴滴还能坐稳网约车第一把交椅吗你怎么看
- 开车刮倒骑自行车的大叔,当时说没事,过后找我,怎么办
- 身高170CM的男生,穿衣该如何搭配
- 滴滴、美团现身“网约车坟场”,近千辆租赁车空置,退车潮来了吗
- Gucci的新秀你们喜欢哪些单品
- CBA强力中锋们合同均将到期,王哲林、周琦、范子铭路在何方
- 北京的妈妈们,谁知道亦庄哪里有乐友孕婴童的店,周末想去给宝宝买点东西
- 职业摄影师都在用哪些app
